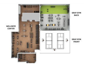
(Batesville, IN) – The Southeastern Indiana YMCA is preparing to embark on a major expansion and renovation of its Gray Gym and Wellness Center, adding 3,800 square feet of new wellness space for members to […]
Moto Jacket + Superga Sneakers
Clockwise from left to right: Topshop Chevron Sweatshirt, Topshop Baxter Ankle Jeans,Topshop Leather Biker Jacket, Superga Sneaker










